Grottvägen 13 A
Lägenhet / Bostadsrätt · 875 000 kr
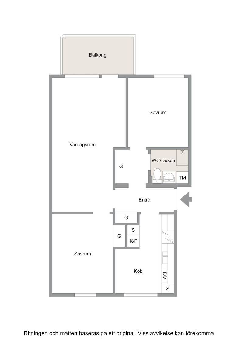
Varmt välkommen till denna fina och välplanerade bostadsrätt om tre rum och kök, belägen på tredje våningen med balkong i fint läge! Här möts du av ljusa, genomgående ytskikt som skapar en modern ocMore...
Varmt välkommen till denna fina och välplanerade bostadsrätt om tre rum och kök, belägen på tredje våningen med balkong i fint läge! Här möts du av ljusa, genomgående ytskikt som skapar en modern och trivsam känsla. Bostaden erbjuder två rymliga sovrum med gott om plats för både vila och förvaring. Det inbjudande allrummet blir en naturlig samlingsplats, med direkt utgång till balkongen där du kan njuta av ett härligt läge – perfekt för avkoppling i eftermiddags- och kvällssolen. Köket är praktiskt utformat med plats för matgrupp, vilket gör det enkelt att samla familj och vänner kring måltider. Det stilrena badrummet är utrustat med tvättmaskin – bekvämligheter som sätter guldkant på vardagen. Här är det bara att flytta in! Bostaden är belägen på populära Högberget med närhet till både förskola och skola. Dessutom har du bekvämt gångavstånd till Hitachi samt Ludvika centrum, där ett brett utbud av butiker, restauranger och caféer finns. Ett hem som kombinerar komfort, läge och trivsel – varmt välkommen på visning!22 images





















