Babordsgatan 27
Radhus / Äganderätt · 6 175 000 kr
Här har du chansen att bli den allra första som flyttar in i ett modernt och välplanerat radhus om 130 kvm — ett hem där varje detalj är skapad för ett bekvämt och trivsamt familjeliv. Beräknad inflytMore...
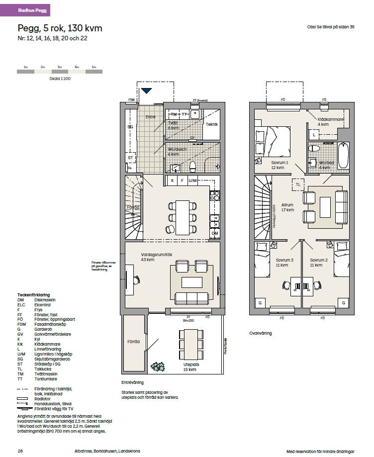
Här har du chansen att bli den allra första som flyttar in i ett modernt och välplanerat radhus om 130 kvm — ett hem där varje detalj är skapad för ett bekvämt och trivsamt familjeliv. Beräknad inflyttning i mars 2027. Entrévåningen bjuder på generösa sociala ytor i öppen planlösning, stora fönster som släpper in rikligt med ljus och direkt utgång till den egna trädgården i eftertraktat söderläge. Det stilrena köket erbjuder gott om både arbetsyta och förvaring och ligger i naturlig kontakt med vardagsrummet — perfekt för såväl vardagsliv som middagar med familj och vänner. På ovanvåningen väntar hemmets mer privata del med flera sovrum, varav ett större sovrum med klädkammare som ger utmärkta förvaringsmöjligheter. Här finns även ett generöst allrum som passar lika bra som tv-rum, lekhörna eller tonårshäng. Bostaden har två badrum som förenklar vardagen — det ena utrustat med badkar för avkopplande stunder. Utomhus väntar trädgård i soligt läge förberedd för uteplats och sådd gräsmatta — en perfekt plats för sommarens måltider, lek och avkoppling. På tomten finns även ett praktiskt förråd som ger extra utrymme. Detta är ett hem för dig som vill kombinera bekvämligheten i ett nybyggt boende med känslan av att få skapa något helt eget — utan renoveringsbehov och med modern standard från första dagen. Kontakta mäklaren för mer information och ta första steget mot ditt nya hem.19 images


















